• JungTube
  • Das Portal für den Pumpen-Profi!
JungTube

Das Portal für den Pumpen-Profi!

Zum Inhalt

  • Forum
  • Bildergalerie
  • Mitglieder
  • Kontakt
  • Service-FAQ
  • Impressum
  • Datenschutz
  • Forum
  • Bildergalerie
  • Mitglieder
  • Kontakt
  • Service-FAQ
  • Impressum
  • Datenschutz
  • Schnellzugriff
    • Unbeantwortete Themen
    • Aktive Themen
    • Suche
    • Mitglieder
    • Das Team
  • FAQ
  • Anmelden
  • Registrieren
  • Foren-Übersicht Service
  • Suche

Compli 400 - ADZ 25 - wo wird das Kabel 30 angeschlossen

Dialog zu Fehlerbehebung, Tipps und Tricks

Moderatoren: jt-admin, marco_koch, andreas_kaempf

Antworten
  • Druckansicht
Erweiterte Suche
10 Beiträge • Seite 1 von 1
jedom
Beiträge: 6
Registriert: Do 13. Mai 2021, 21:39
Kontaktdaten:
Kontaktdaten von jedom
Private Nachricht senden

Compli 400 - ADZ 25 - wo wird das Kabel 30 angeschlossen

  • Zitieren

Beitrag von jedom » Do 13. Mai 2021, 21:55

Hallo, ich brauche mal Eure Hilfe - ich werde aus dem Schaltplan nicht schlau :
wo wird das schwarze Kabel 30 von der Pumpe kommend auf der Platine angeschlossen ? Auf der Platine befindet sich keine Klemme 30. Es war offensichtlich direkt am Schütz Kontakt 13 oder an der L3 angeschlossen - ich finde das aber auf dem Schaltplan nicht wieder - er müsste auf laut Schaltplan auf das Relais A1 oder A2 gehen ?
die Pumpe hatte ich gebraucht gekauft - die Kontakte waren aber so korrodiert, dass ich diese erst mal säubern musste - ich kann mir aber nicht vorstellen, dass 2 dicke Anschlüsse unter die Klemmen vom Schütz geschraubt werden.

Danke !
Dateianhänge
2021-05-13 at 21.44.03.jpeg
2021-05-13 at 21.42.01.jpeg
2021-05-13 at 21.41.50.jpeg
Nach oben
Benutzeravatar
Bomberfahrer
Beiträge: 68
Registriert: Do 8. Okt 2009, 19:55
Wohnort: Ammerland
Kontaktdaten:
Kontaktdaten von Bomberfahrer
Private Nachricht senden

Re: Compli 400 - ADZ 25 - wo wird das Kabel 30 angeschlossen

  • Zitieren

Beitrag von Bomberfahrer » Fr 14. Mai 2021, 14:18

Hallo,
auf dem Schaltplan sind die Drähte des Thermokontaktes (F2 = 30+31) auf der Platine an den dort vorhandenen Klemmen (30+31) direkt angeschlossen. Die Klemmen dürften sich etwas unterhalb des Motorschutzrelais befinden.

Man müsste, bevor die Steuerung montiert und in Betrieb genommen wird, erstmal das Schütz erneuern. Das Schütz sieht auf dem Bild sehr stark vergammelt aus, vermutlich hat die Steuerung sehr viel Feuchtigkeit erlebt. Ferner müsste man die Platine aus dem Gehäuse nehmen, um sie von der Rückseite auf Schäden zu begutachten. Ich vermute durch die hohe Feuchtigkeit sind dort so einige Leiterbahnen zerstört worden.
Wem die Scheiße bis zum Halse steht, der sollte den Kopf nicht hängen lassen!
Nach oben
jedom
Beiträge: 6
Registriert: Do 13. Mai 2021, 21:39
Kontaktdaten:
Kontaktdaten von jedom
Private Nachricht senden

Re: Compli 400 - ADZ 25 - wo wird das Kabel 30 angeschlossen

  • Zitieren

Beitrag von jedom » Fr 14. Mai 2021, 19:31

Hallo - vielen Dank - leider gibt es auf der Platine keine Klemme 30 - deswegen war ich ja unsicher. Die Platine sieht von der Rückseite noch super aus , auch hatte das System ja beim Verkauf funktioniert - beim Anschiessen des 400V-kabels flog mir das Kabel 30 entgegen
Hm es war auf der L3, aber es ist auf dem Schaltplan nicht erkennbar 🙁
Dateianhänge
1D208AB2-BD7A-4389-9FD9-708733BFE0F7.jpeg
BB409874-C005-4905-A8D6-7288DD3E381D.jpeg
2BAD7F91-8233-44C9-A8B1-2F5618745ED4.jpeg
17C77315-4959-4A52-889D-87CC6F2E7F1C.jpeg
3A7354A3-CB41-4A51-A296-68BF957773A0.jpeg
Nach oben
Benutzeravatar
bastelkoenig
Beiträge: 798
Registriert: So 20. Jul 2008, 17:07
Wohnort: Hannover-Garbsen
Kontaktdaten:
Kontaktdaten von bastelkoenig
Private Nachricht senden ICQ

Re: Compli 400 - ADZ 25 - wo wird das Kabel 30 angeschlossen

  • Zitieren

Beitrag von bastelkoenig » Fr 14. Mai 2021, 23:07

Kann es sein das der so verdrahtet war, das er Phase von L3 bekommt und dann auf das MSR klemme 96 ging,
so das die Öffner von Pumpenthermokontakt und Motorschutzrelais in reihe lagen?

So oder so aber nicht gut, unabgesichert L3 auf den Thermokontakt zu legen.
Alles ist machbar->Unmögliches sofort und Wunder mit einer Woche Wartezeit :-D :-P
Nach oben
jedom
Beiträge: 6
Registriert: Do 13. Mai 2021, 21:39
Kontaktdaten:
Kontaktdaten von jedom
Private Nachricht senden

Re: Compli 400 - ADZ 25 - wo wird das Kabel 30 angeschlossen

  • Zitieren

Beitrag von jedom » Sa 15. Mai 2021, 20:22

hallo, offensichtlich habe ich den falschen Schaltplan oder es gibt noch einen andren, auf dem die Verdrahtung der X-kontakte und des Schutzschalters Q1 und Klemmen 30/31 ersichtlich wird. kann mal bitte jemand ein Photo von der verdrahteten Platine posten. Danke !!!
Nach oben
Benutzeravatar
Bomberfahrer
Beiträge: 68
Registriert: Do 8. Okt 2009, 19:55
Wohnort: Ammerland
Kontaktdaten:
Kontaktdaten von Bomberfahrer
Private Nachricht senden

Re: Compli 400 - ADZ 25 - wo wird das Kabel 30 angeschlossen

  • Zitieren

Beitrag von Bomberfahrer » So 16. Mai 2021, 18:32

Hallo,
das ist wirklich eine recht komische Sache. Laut den Leiterbahnen die Platine ist wie folgt anzuschließen:

Zuleitung:
L1 auf Klemme 1 (L1) am Schütz + Verbindung zur Platine linker Kabelschuh (X1)
L2 auf Klemme 3 (L2) am Schütz + Verbindung zur Platine mittlerer Kabelschuh (X2)
L3 auf Klemme 5 (L3) am Schütz
N auf Klemme N unten auf Platine
PE auf Klemme PE unten auf Platine

Motorleitung:
U1 auf Klemme 2 (T1) am Motorschutzrelais
V1 auf Klemme 4 (T2) am Motorschutzrelais
W1 auf Klemme 6 (T3) am Motorschutzrelais
30 auf Klemme 5 (L3) am Schütz !!!
32 auf Klemme 96 am Motorschutzrelais !!!

Die Verbindung A1 am Schütz geht zur Platine rechter Kabelschuh (X3)
Die Verbindung A2 am Schütz geht zum Motorschutzrelais Klemme 95
Die Verbindung 7 (13) am Schütz geht zur Platine X4
Die Verbindung 8 (14) am Schütz geht zur Platine X5
Die Verbindung 97 am Motorschutzrelais geht zum Schütz 8 (14)
Die Verbindung 98 am Motorschutzrelais geht zur Platine X6

!!! Vorsicht !!!
Wie @Bastelkönig schon geschrieben hat, liegen im Motor über den Thermokontakt permanent 230VAC an. Das ist nach heutiger Ansicht nicht ganz richtig, da der N-Leiter auf der Platine über das kleine weiße Relais geschaltet wird. Zwar befindet sich eine Feinsicherung auf der Platine, die schützt aber nur den Spulenpfad vom Schütz.

Leider lässt sich aus der Entfernung nicht genau sagen ob man es anders sicherer anschliessen kann, da die Drehfeldüberwachung auch noch mitspielt.

Aber auf jeden Fall noch das Schütz austauschen. Nicht, dass es irgendwann festbrennt und sich der Motor mit einem Dauerlauf auf 2 Phasen verabschiedet. Dafür ist er zu Schade.

Ich hoffe, ich konnte helfen

Reiner
Wem die Scheiße bis zum Halse steht, der sollte den Kopf nicht hängen lassen!
Nach oben
jedom
Beiträge: 6
Registriert: Do 13. Mai 2021, 21:39
Kontaktdaten:
Kontaktdaten von jedom
Private Nachricht senden

Re: Compli 400 - ADZ 25 - wo wird das Kabel 30 angeschlossen

  • Zitieren

Beitrag von jedom » So 16. Mai 2021, 21:18

Super, vielen lieben Dank - das Schütz und das MSR habe ich bereits bestellt - somit kann ich am kommenden Wochenende testen .
Heute bin ich über die Rückschlagklappe gestolpert : ich wollte das Ventil säubern und die Gummi-klappe ersetzen, da diese nicht mehr dicht war : die vorhandene Klappe ist auf den Deckel geschraubt - meine Ersatzklappe hatte keine Schrauben, der Ersatz-Deckel keine Gewinde sondern nur ein paar Nase am Ende - somit ist irgendwann ein Wechsel in der Baureihe erfolgt ?
Nach oben
jedom
Beiträge: 6
Registriert: Do 13. Mai 2021, 21:39
Kontaktdaten:
Kontaktdaten von jedom
Private Nachricht senden

Re: Compli 400 - ADZ 25 - wo wird das Kabel 30 angeschlossen

  • Zitieren

Beitrag von jedom » Mo 17. Mai 2021, 12:13

HAllo, mittlerweile habe ich von Jung den konkreten Schaltplan für das ADZ 25 erhalten könne und auch die Teilenummer der Rückschlagklappe mit der Schraubbefestigung ( JP47828 Klappe R80) erhalten - also vielen Dank für Eure Unterstützung !
Nach oben
jedom
Beiträge: 6
Registriert: Do 13. Mai 2021, 21:39
Kontaktdaten:
Kontaktdaten von jedom
Private Nachricht senden

Re: Compli 400 - ADZ 25 - wo wird das Kabel 30 angeschlossen

  • Zitieren

Beitrag von jedom » Mo 17. Mai 2021, 12:44

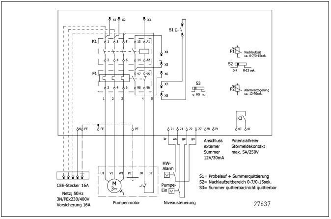
Hier ist der Plan der ADZ25 , auf der die Belegung noch einmal ersichtlich ist.
Dateianhänge
ADZ25.JPG
Nach oben
Benutzeravatar
bastelkoenig
Beiträge: 798
Registriert: So 20. Jul 2008, 17:07
Wohnort: Hannover-Garbsen
Kontaktdaten:
Kontaktdaten von bastelkoenig
Private Nachricht senden ICQ

Re: Compli 400 - ADZ 25 - wo wird das Kabel 30 angeschlossen

  • Zitieren

Beitrag von bastelkoenig » Mo 17. Mai 2021, 21:57

Sehe ich das richtig, das das auslösen des Thermokontaktes zwar zum Abschalten der Pumpe,
aber nicht zu einer Störmeldung führt?
Oder wird das über den Schließer des Schützes Logisch verknüpft erkannt?
Alles ist machbar->Unmögliches sofort und Wunder mit einer Woche Wartezeit :-D :-P
Nach oben
Antworten
  • Druckansicht

10 Beiträge • Seite 1 von 1

Zurück zu „Service“

Gehe zu
  • Allgemeines
  • Service
  • Planung
  • Produkte und Ideen
  • Wirklich passiert!
  • Smart Home und Pumpentechnik

Wer ist online?

Mitglieder in diesem Forum: Amazon [Bot], Bing [Bot], Google [Bot] und 17 Gäste

  • Foren-Übersicht
  • Alle Zeiten sind UTC+01:00
  • Alle Cookies löschen
  • Mitglieder
  • Das Team

Powered by phpBB® Forum Software © phpBB Limited

Customized by WireSys.de

Datenschutz | Nutzungsbedingungen